Scale
The scale of the development in terms of its height and mass responds to the characteristics of the site and the surrounding built-form. The scale of development has been carefully designed to reflect the character of the surrounding area and this is one of the reserved matters’that will be formally assessed by the Council. In summary, the proposals comprise:
- Predominantly two storey development with some one storey properties – the majority of the homes are two storeys in height, reflecting the prevailing scale of nearby residential properties and ensuring a comfortable fit within the local context;
- A variation in house types – a mix of house types is proposed, ranging from smaller homes to larger family dwellings which creates a varied and balanced streetscape;
- Will have sensitive edges to the countryside – lower scale forms of development, including bungalows and carefully positioned houses are located along the key site boundaries to provide a softer transition to the surrounding countryside;
- Rooflines have been carefully articulated – the use of pitched roofs, varied building widths and traditional proportions helps to break up building mass and avoid a uniform or overly dense appearance; and
- Consistent with the parameters that were approved at outline stage – the proposed scale sits comfortably within the limits established by the outline permission, ensuring the development remains in line with the principles already accepted.

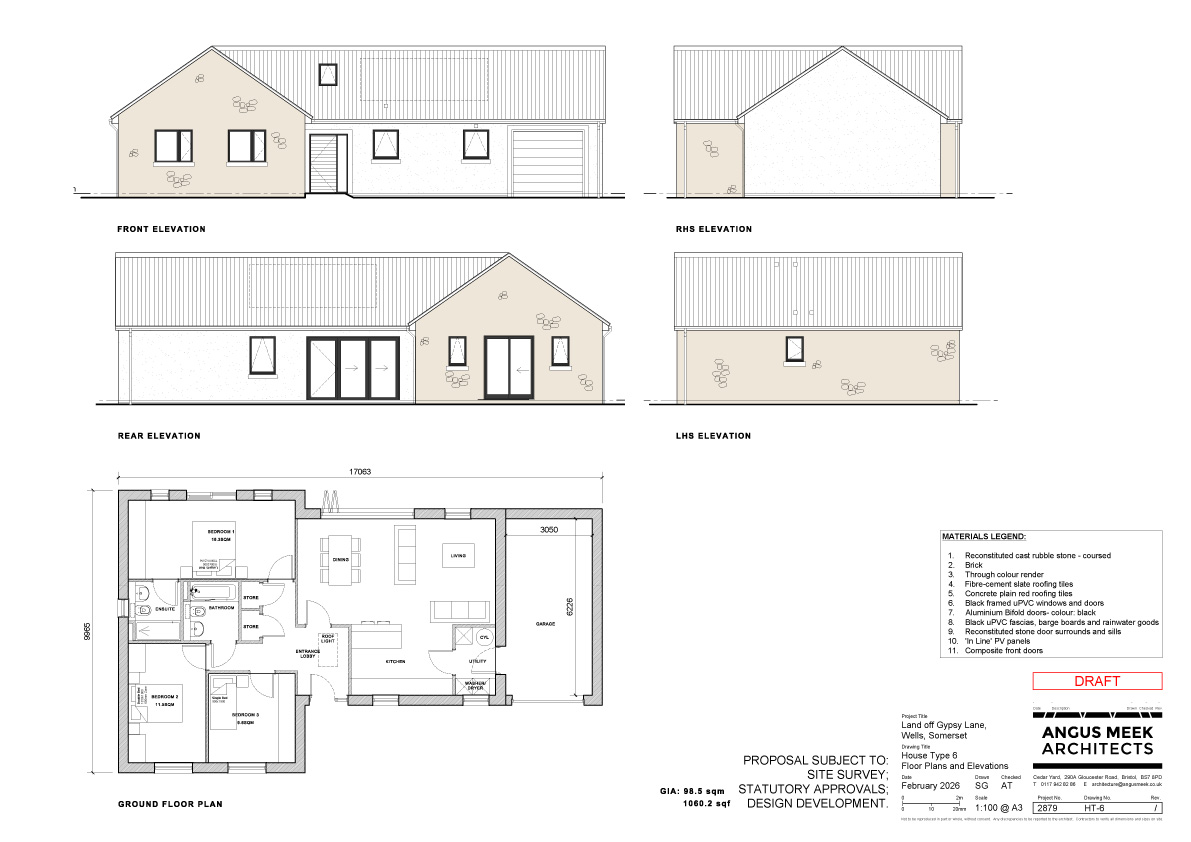
Illustrative CGI of Bungalow (House Type 6)

Illustrative CGI of detached dwelling (House Type 9)
Appearance
The same design intent is reflected in both the open market and affordable homes which have been designed to reflect the character of the local area, using high quality and a carefully considered palette of materials.
- Local Materials – The scheme proposes a combination of reconstituted stone, cladding and render, reflecting the variation in materials found in the surrounding area. These materials are used in a balanced way across the proposed development to create visual interest and add variety to the built form.
- Simple and Traditional Forms – The proposed new homes feature pitched roofs with simple and well proportioned elevations. They will provide the new residents with a modern and energy efficient standard of living.
- Street-scene – A variety of materials have been used across the development to ensure that the streets feel varied and distinctive in character, rather than uniform and suburban. This ensures that overall there is a cohesive appearance to the development.
- High Quality Detailing and Features – The windows and doors will be finished in light grey frames, with stone surrounds and sills, adding definition to the facades of the dwellings. This will create a crisp and contemporary finish alongside some of the more traditional materials that draw homage to the rural character of the area.
- Strong Frontages and Active Streets – The fronts doors and windows are positioned to face onto streets and open spaces, helping to create a welcoming and attractive street-scene but also providing natural surveillance where required.
- Sustainability Measures – Roofs will have flush mounted solar PV panels which will be carefully integrated into the design reducing any visual impact.
- Choice of Materials – Some of the proposed materials have been chosen for their durability and low maintenance such as the fibre-cement roof tiles, aluminium doors and uPVC elements which ensure that the homes are long-lasting and easy to maintain which will benefit local residents longer term.

Click to enlarge images:














